Trituradora de Duplo Eixo
O triturador de duplo eixo da 3E Machinery é capaz de desfazer pneus em peças com uma dimensão de 50x50mm ou superior para um tratamento posterior. Este equipamento de trituração é fornecido com uma variedade de tamanhos. A dimensão do material de alimentação pode variar entre os 0.4m e os 2m. Para clientes que tenham um pequena capacidade de produção (200Kg/h) ou uma grande capacidade de produção (5 a 10 toneladas por hora) e para aqueles que manuseiam pneus com um diâmetro entre 1.2m e os 2m. O correcto equipamento de trituração pode ser escolhido de acordo com os seus requisitos.
Características da Trituradora de Duplo Eixo
1. A máquina de dupla condução utilizada na máquina de trituração de duplo eixo tem um alto torque e uma baixa velocidade. Os motores são controlados separadamente, de forma a que a velocidade possa ser definida separadamente e definida de uma forma fácil. Na segunda etapa do processo, os motores deste triturador podem rodar no sentido inverso e individualmente, de forma a aumentar a capacidade de produção em 15%. Quantas vezes menos tempo de rotação invertida, maior a vida útil dos motores..
2. É instalado um braço hidráulico no funil de carga do triturador de duplo eixo para pressionar o material reciclado para o cortador.
3. Diversos tipos de lâminas podem ser disponibilizadas para a trituradora de duplo eixo, onde se inclui material de liga de aço para soldaduras sobre expostas, os materiais de elevada liga de aço não são indicadas para soldaduras sobre expostas; cortadores com cabeças de corte amovíveis, etc.
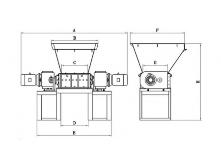
Especificação da Trituradora de Duplo Eixo| Modelo | |||||||
| Especificações | |||||||
| A(mm) | 3000 | 3446 | 3646 | 4388 | 5000 | 6080 | 6780 |
| B(mm) | 1300 | 1520 | 1520 | 1630 | 1950 | 2460 | 3160 |
| C(mm) | 804 | 1004 | 1204 | 1284 | 1604 | 1808 | 2508 |
| D(mm) | 830 | 1160 | 1362 | 1422 | 1782 | 2060 | 2760 |
| E(mm) | 1920 | 3486 | 3686 | 4488 | 5100 | 5400 | 6100 |
| F(mm) | 1260 | 1360 | 1416 | 1610 | 1610 | 2120 | 2820 |
| G(mm) | 460 | 2320 | 2140 | 2500 | 2600 | 3170 | 3170 |
| H(mm) | 1870 | 1992 | 1992 | 2210 | 2320 | 2310 | 2310 |
| I(mm) | 686 | 686 | 858 | 858 | 1410 | 1410 | |
| Diâmetro das Lâminas do Rotor (mm) | φ284 | φ430 | φ430 | φ514 | φ514 | φ800 | φ800 |
| Câmara de Corte (mm) | 804×460 | 1004×686 | 1204×686 | 1284×858 | 1604×858 | 1808×1410 | 2508×1410 |
| Velocidade do Veio Principal (rpm) | 15 | 15 | 15 | 15 | 11 | 10 | 10 |
| Quantidade de Lâminas do Rotor (peças) | 40 | 25 | 30 | 32 | 32 | 36 | 50 |
| Espessura das Lâminas (mm) | 20 | 40 | 40 | 40 | 50 | 50 | 50 |
| Potência do Motor (kw) | 7.5 7.5 | 22 22 | 22 22 | 37 37 | 45 45 | 55 55 | 75 75 |
| Peso (kg) | 2400 | 5800 | 6300 | 12500 | 13700 | 22400 | 25000 |
3E Machinery projeta e fabrica várias máquinas de reciclagem e trituradoras com linhas de reciclagem customizadas e soluções para processamento de filme plástico, garrafas PET, pneus de borracha, sucatas, resíduos sólidos municipais, resíduos hospitalares e de indústria química e mais.